202 Cima De Colina
Pismo Beach, CA, 93449
$1,895,000
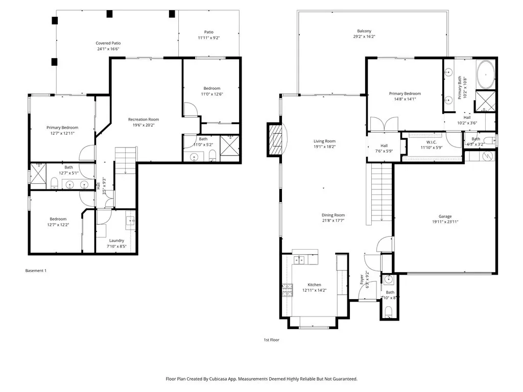
Ocean views define this Las Ventanas del Mar home, positioned on the highest street in the community for maximum coastline impact. Set on a corner lot means fewer neighboring sightlines and more breathing room. You’ll feel the privacy the minute you arrive.
The front entryway leads into a welcoming foyer with a discreet powder room. The main level is designed for easy living and entertaining, featuring a spacious living room with a cozy fireplace, an open-concept kitchen and a primary suite that offers comfort, privacy and ocean views, with the ocean visible from the bed. The primary suite feels like a retreat with a custom walk in closet, dual vanities, built in oversized tub and a stone-finished walk-in shower. The 2-car garage has custom built-in cabinetry for serious storage (think pantry-style space for groceries, and organized tool storage) with direct access from the garage to the main living area. An oversized deck stretches across the back of the home, giving you the perfect spot to relax, host, and take in the coastline.
The kitchen is made for gathering, with plenty of prep space, granite counter tops with a convenient bar area, and high-end stainless-steel appliances. Finishes are dialed in: the entire main living area features high-end tile that looks like wood (beautiful and durable), the staircase and lower-level features gorgeous real wood flooring with carpet in the downstairs bedrooms. Downstairs, guests and kids have their own space with three additional bedrooms, 2 full bathrooms, a large laundry/utility room, access to outdoor living, plus a separate family room that opens to the yard.
The backyard is terraced and thoughtfully designed, complete with an easy to maintain yard. With 4 bedrooms and 3.5 baths, incredible views from nearly every window in the house and the privacy perks of a corner lot, this home is a showpiece built for comfort and entertaining. This is one of those homes that feels even better in person. If you’ve been waiting for views, privacy, and a true entertainer’s layout, you’ll want to see this one. Las Ventanas del Mar is a rare find, and the opportunity to own a home here does not come around often.
The front entryway leads into a welcoming foyer with a discreet powder room. The main level is designed for easy living and entertaining, featuring a spacious living room with a cozy fireplace, an open-concept kitchen and a primary suite that offers comfort, privacy and ocean views, with the ocean visible from the bed. The primary suite feels like a retreat with a custom walk in closet, dual vanities, built in oversized tub and a stone-finished walk-in shower. The 2-car garage has custom built-in cabinetry for serious storage (think pantry-style space for groceries, and organized tool storage) with direct access from the garage to the main living area. An oversized deck stretches across the back of the home, giving you the perfect spot to relax, host, and take in the coastline.
The kitchen is made for gathering, with plenty of prep space, granite counter tops with a convenient bar area, and high-end stainless-steel appliances. Finishes are dialed in: the entire main living area features high-end tile that looks like wood (beautiful and durable), the staircase and lower-level features gorgeous real wood flooring with carpet in the downstairs bedrooms. Downstairs, guests and kids have their own space with three additional bedrooms, 2 full bathrooms, a large laundry/utility room, access to outdoor living, plus a separate family room that opens to the yard.
The backyard is terraced and thoughtfully designed, complete with an easy to maintain yard. With 4 bedrooms and 3.5 baths, incredible views from nearly every window in the house and the privacy perks of a corner lot, this home is a showpiece built for comfort and entertaining. This is one of those homes that feels even better in person. If you’ve been waiting for views, privacy, and a true entertainer’s layout, you’ll want to see this one. Las Ventanas del Mar is a rare find, and the opportunity to own a home here does not come around often.
Current real estate data for Single Family in Pismo Beach as of Apr 28, 2026
59
Single Family Listed
71
Avg DOM
802
Avg $ / SqFt
$1,563,130
Avg List Price
Property Details
Price:
$1,895,000
MLS #:
PI26000378
Status:
Pending
Beds:
4
Baths:
4
Type:
Single Family
Subtype:
Single Family Residence
Neighborhood:
psmopismobeach
Listed Date:
Jan 15, 2026
Finished Sq Ft:
2,602
Lot Size:
6,125 sqft / 0.14 acres (approx)
Year Built:
2014
Schools
School District:
Lucia Mar Unified
Elementary School:
Shell Beach
Middle School:
Judkins
High School:
Arroyo Grande
Interior
Appliances
DW, GD, IM, MW, RF, WLR, GO, GR, BIR, CO, GWH, HOD, SCO, WHU, WS
Bathrooms
3 Full Bathrooms, 1 Half Bathroom
Cooling
CA
Flooring
TILE, WOOD, CARP
Heating
FA, GAS
Interior Features
BI, RECL, STNC, LRDA, OFP, BL, HCEL
Laundry Features
GAS, IR, IN, WH
Levels
U
Main Level Bathrooms
2
Main Level Bedrooms
1
Exterior
Accessibility Features
PK
Architectural Style
MED
Attached Garage YN
1
Common Walls
NCW
Community Features
RS, SDW, STM, SL, CRB, FHL, PARK, BIKI, DGP
Construction Materials
STN, STC
Direction Faces
S
Exterior Features
LIT, RG
Fencing
WI
Garage Spaces
2
Parking Spots
5
Parking Total
5
Patio And Porch Features
CON, DK, PTO, SL
Roof
TLE
Security Features
SD, COD
View
CN, HI, OC, WA, NE
Window Features
BLI, SCR, SHT, CWC, DPW, DPC
Financial
HOA Fee
$130
HOA Fee Frequency
QTR
Map
Contact Us
Mortgage Calculator
Community
- Address202 Cima De Colina Pismo Beach CA
- CityPismo Beach
- CountySan Luis Obispo
- Zip Code93449
Subdivisions in Pismo Beach
Property Summary
- 202 Cima De Colina Pismo Beach CA is a Single Family for sale in Pismo Beach, CA, 93449. It is listed for $1,895,000 and features 4 beds, 4 baths, and has approximately 2,602 square feet of living space, and was originally constructed in 2014. The current price per square foot is $728. The average price per square foot for Single Family listings in Pismo Beach is $802. The average listing price for Single Family in Pismo Beach is $1,563,130. To schedule a showing of MLS#pi26000378 at 202 Cima De Colina in Pismo Beach, CA, contact your Outland and Associates / JoAnn Outland agent at 8054417754.
Similar Listings Nearby
Get Out There, A Simply Outgoing Approach to Life. James Outland Jr. is one of those rare people who simply has an outgoing approach to life. No matter the activity… from dune buggy riding to skydiving to motorcycling to riding the local Pismo Beach waves… James Outland Jr. approaches life with a “just get out there and do it” kind of attitude. A zest for Life. James’ zest for life is obviously apparent in his many exciting hobbies. In his spare time, he loves riding dune buggies or hi…
More About James
Courtesy of Keller Williams Realty Santa Barbara. Disclaimer: All data relating to real estate for sale on this page comes from the Broker Reciprocity (BR) of the California Regional Multiple Listing Service. Detailed information about real estate listings held by brokerage firms other than Outland and Associates / JoAnn Outland include the name of the listing broker. Neither the listing company nor Outland and Associates / JoAnn Outland shall be responsible for any typographical errors, misinformation, misprints and shall be held totally harmless. The Broker providing this data believes it to be correct, but advises interested parties to confirm any item before relying on it in a purchase decision. Copyright 2026. California Regional Multiple Listing Service. All rights reserved. 202 Cima De Colina
Pismo Beach, CA





















































