338 N 6th
Grover Beach, CA, 93433
$1,497,000
Looking for a 3 bedroom home for sale in North Grover Beach with ocean views, a huge lot, RV parking, and ADU potential? This beautifully updated coastal property offers elevated living just six blocks from the beach near restaurants, shopping, and entertainment in one of Grover Beach’s most desirable neighborhoods.
Welcome to your North Grover Beach retreat, where style, space, and location come together. Positioned on an oversized 50 x 150 lot, this updated 3 bedroom, 3 bath home captures sweeping Pacific Ocean, dune, and city views from the spacious covered second-story veranda.
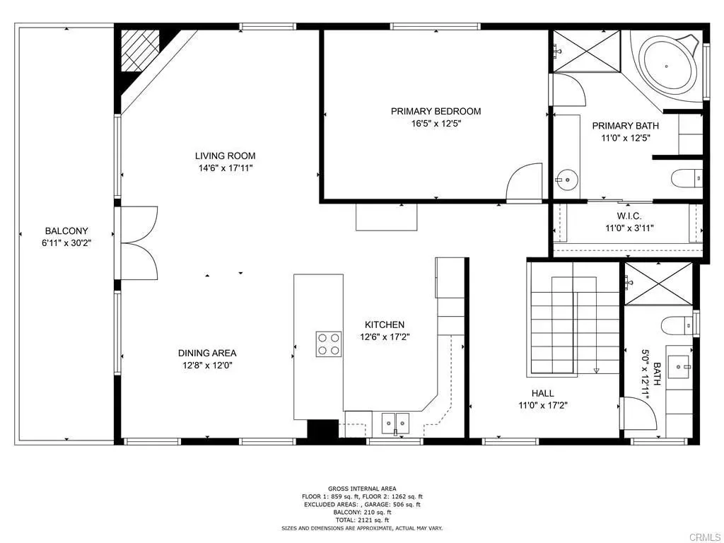
Inside, natural light fills the open-concept main level featuring vaulted ceilings, skylights, and a welcoming living room with fireplace. French doors open to the balcony, creating seamless indoor-outdoor living and the perfect setting for sunset dinners, morning coffee, or entertaining guests with ocean breezes in the background.
The remodeled kitchen is designed to impress with Luxuries designer granite countertops, JennAir range, Fisher & Paykel double drawer dishwasher, built-in wine fridge, generous cabinetry, and expansive prep space.
The upstairs primary suite offers privacy and comfort with a soaking tub, walk-in shower with multi-body sprayers, walk-in closet, and tasteful designer finishes. A full guest bath completes the upper level.
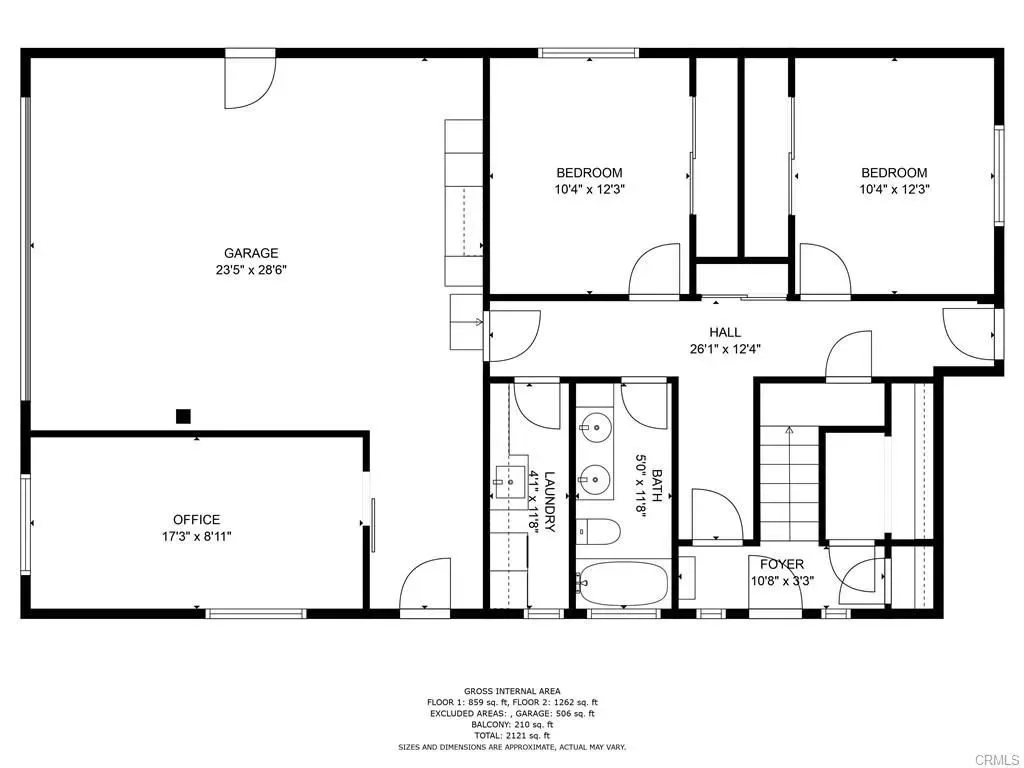
Downstairs includes two spacious bedrooms, one full bath, indoor laundry, and private exterior access, ideal for guests, multigenerational living, or flexible use.
Need space for hobbies or remote work? A separate bonus room with private barn-door entry is ideal for a home office, gym, studio, or creative workspace.
The oversized backyard is beautifully landscaped and ready for entertaining, gardening, or future expansion. Features include:
• RV parking
• Oversized attached 2-car garage
• Storage shed
• Tankless water heater
• Water softener
• Interior fire sprinkler system
• Irrigated landscaping
Buyers seeking income potential or expansion will appreciate the opportunity for a possible ADU, workshop, or SB9 lot split potential (buyer to verify with city).
Located near the beach, parks, restaurants, and coastal amenities, this is more than a home; it is a lifestyle opportunity in North Grover Beach.
If you want ocean views, land, flexibility, and true Central Coast living, this is the one buyers need to see in person.
Welcome to your North Grover Beach retreat, where style, space, and location come together. Positioned on an oversized 50 x 150 lot, this updated 3 bedroom, 3 bath home captures sweeping Pacific Ocean, dune, and city views from the spacious covered second-story veranda.
Inside, natural light fills the open-concept main level featuring vaulted ceilings, skylights, and a welcoming living room with fireplace. French doors open to the balcony, creating seamless indoor-outdoor living and the perfect setting for sunset dinners, morning coffee, or entertaining guests with ocean breezes in the background.
The remodeled kitchen is designed to impress with Luxuries designer granite countertops, JennAir range, Fisher & Paykel double drawer dishwasher, built-in wine fridge, generous cabinetry, and expansive prep space.
The upstairs primary suite offers privacy and comfort with a soaking tub, walk-in shower with multi-body sprayers, walk-in closet, and tasteful designer finishes. A full guest bath completes the upper level.
Downstairs includes two spacious bedrooms, one full bath, indoor laundry, and private exterior access, ideal for guests, multigenerational living, or flexible use.
Need space for hobbies or remote work? A separate bonus room with private barn-door entry is ideal for a home office, gym, studio, or creative workspace.
The oversized backyard is beautifully landscaped and ready for entertaining, gardening, or future expansion. Features include:
• RV parking
• Oversized attached 2-car garage
• Storage shed
• Tankless water heater
• Water softener
• Interior fire sprinkler system
• Irrigated landscaping
Buyers seeking income potential or expansion will appreciate the opportunity for a possible ADU, workshop, or SB9 lot split potential (buyer to verify with city).
Located near the beach, parks, restaurants, and coastal amenities, this is more than a home; it is a lifestyle opportunity in North Grover Beach.
If you want ocean views, land, flexibility, and true Central Coast living, this is the one buyers need to see in person.
Current real estate data for Single Family in Grover Beach as of Apr 27, 2026
65
Single Family Listed
52
Avg DOM
552
Avg $ / SqFt
$738,174
Avg List Price
Property Details
Price:
$1,497,000
MLS #:
PI26082646
Status:
Active
Beds:
3
Baths:
3
Type:
Single Family
Subtype:
Single Family Residence
Neighborhood:
grvcgroverbeach
Listed Date:
Apr 23, 2026
Finished Sq Ft:
1,957
Lot Size:
7,405 sqft / 0.17 acres (approx)
Year Built:
2007
Schools
School District:
San Luis Coastal Unified
Interior
Appliances
DW, GD, GO, FSR, TW
Bathrooms
3 Full Bathrooms
Cooling
NO
Heating
CF
Interior Features
RECL, GRNC, LRBA, LRDA, OFP
Laundry Features
IN
Levels
U
Main Level Bathrooms
2
Main Level Bedrooms
2
Exterior
Attached Garage YN
1
Common Walls
NCW
Community Features
URB
Garage Spaces
2
Parking Spots
2
Parking Total
2
View
OC, DUN
Financial
Map
Contact Us
Mortgage Calculator
Community
- Address338 N 6th Grover Beach CA
- CityGrover Beach
- CountySan Luis Obispo
- Zip Code93433
Subdivisions in Grover Beach
Property Summary
- 338 N 6th Grover Beach CA is a Single Family for sale in Grover Beach, CA, 93433. It is listed for $1,497,000 and features 3 beds, 3 baths, and has approximately 1,957 square feet of living space, and was originally constructed in 2007. The current price per square foot is $765. The average price per square foot for Single Family listings in Grover Beach is $552. The average listing price for Single Family in Grover Beach is $738,174. To schedule a showing of MLS#pi26082646 at 338 N 6th in Grover Beach, CA, contact your Outland and Associates / JoAnn Outland agent at 8054417754.
Similar Listings Nearby
Full-time Real Estate Broker, sold 1400+ Properties in SLO and SBC County. 40+ years of local real estate knowledge and experience. I understand each sale is about you and your goals. I know as we get older, we don’t have time to make up for any mistakes especially when it comes to one the most significant investments. I care about my clients and work very hard to share my knowledge and protect you along the way. I place the appropriate verbiage in the listing and listing agreement depending…
More About JoAnn
Courtesy of Mid Coast Realty. Disclaimer: All data relating to real estate for sale on this page comes from the Broker Reciprocity (BR) of the California Regional Multiple Listing Service. Detailed information about real estate listings held by brokerage firms other than Outland and Associates / JoAnn Outland include the name of the listing broker. Neither the listing company nor Outland and Associates / JoAnn Outland shall be responsible for any typographical errors, misinformation, misprints and shall be held totally harmless. The Broker providing this data believes it to be correct, but advises interested parties to confirm any item before relying on it in a purchase decision. Copyright 2026. California Regional Multiple Listing Service. All rights reserved. 338 N 6th
Grover Beach, CA




















































