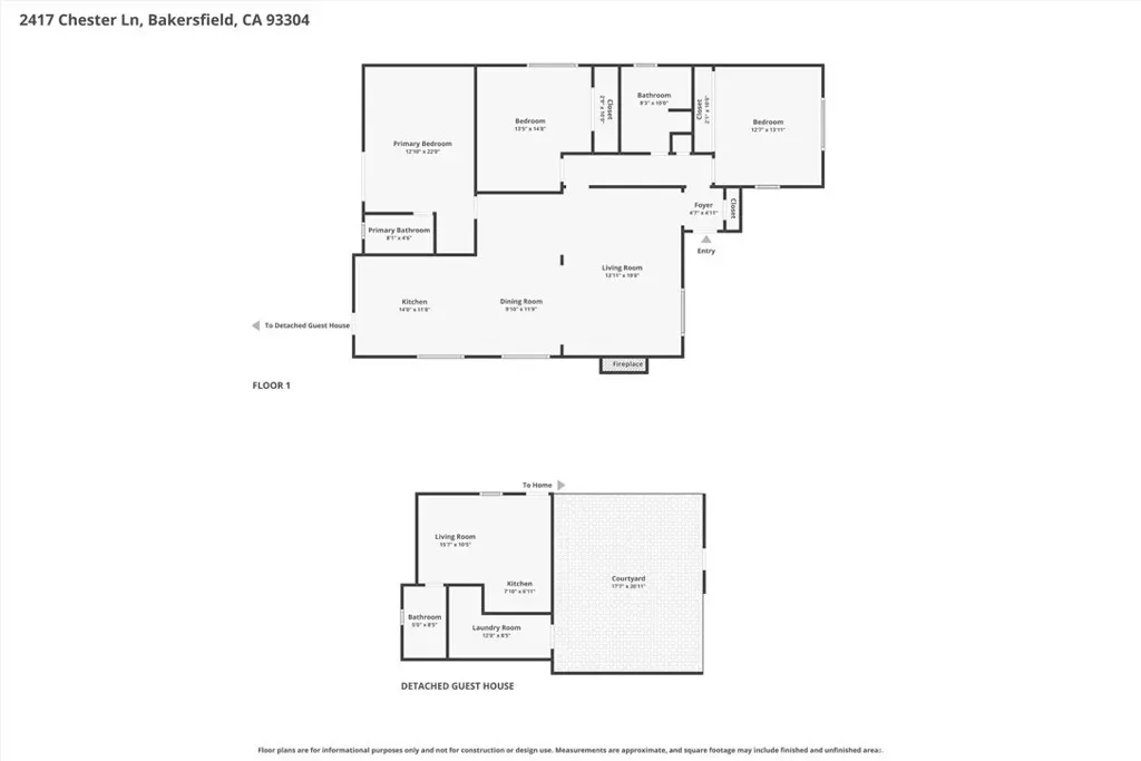
This one-of-a-kind property in the heart of Oleander offers incredible versatility and modern style. The main home features 3 bedrooms and 2 bathrooms, complemented by a detached 1-bedroom, 1-bath ADU complete with its own kitchen. As you enter, you’re welcomed by a spacious living area with a cozy fireplace that flows into the dining area, creating an inviting space for everyday living and entertaining. The kitchen flows from the dining area, offering ample cabinet and counter space with a functional layout for cooking, prepping, and gathering. Stepping outside, you’ll find a private backyard retreat with a sparkling pool and shaded patio area, perfect for the summer months. The detached ADU features its own private entrance, ideal for extended family, guests, or rental income. The property also includes a gated front yard with potential RV parking, along with a front deck patio perfect for relaxing or enjoying your morning coffee. This is a rare opportunity you won’t want to miss!
Current real estate data for Single Family in Bakersfield as of Apr 24, 2026
515
Single Family Listed
73
Avg DOM
236
Avg $ / SqFt
$493,067
Avg List Price
Property Details
Price:
$349,900
MLS #:
PI26088320
Status:
Active
Beds:
4
Baths:
3
Type:
Single Family
Subtype:
Single Family Residence
Neighborhood:
bksfbakersfield
Listed Date:
Apr 23, 2026
Finished Sq Ft:
1,979
Lot Size:
5,956 sqft / 0.14 acres (approx)
Year Built:
1938
Schools
School District:
Bakersfield City
Interior
Bathrooms
3 Full Bathrooms
Cooling
CA, DUC
Heating
CF
Laundry Features
IR, OUT
Levels
A
Main Level Bathrooms
3
Main Level Bedrooms
4
Exterior
Common Walls
NCW
Community Features
SDW, SL, CRB, CW
Parking Spots
1
Parking Total
1
View
NO
Financial
Map
Contact Us
Mortgage Calculator
Community
- Address2417 Chester LN Bakersfield CA
- CityBakersfield
- CountyKern
- Zip Code93304
Property Summary
- 2417 Chester LN Bakersfield CA is a Single Family for sale in Bakersfield, CA, 93304. It is listed for $349,900 and features 4 beds, 3 baths, and has approximately 1,979 square feet of living space, and was originally constructed in 1938. The current price per square foot is $177. The average price per square foot for Single Family listings in Bakersfield is $236. The average listing price for Single Family in Bakersfield is $493,067. To schedule a showing of MLS#pi26088320 at 2417 Chester LN in Bakersfield, CA, contact your Outland and Associates / JoAnn Outland agent at 8054417754.
Similar Listings Nearby
Full-time Real Estate Broker, sold 1400+ Properties in SLO and SBC County. 40+ years of local real estate knowledge and experience. I understand each sale is about you and your goals. I know as we get older, we don’t have time to make up for any mistakes especially when it comes to one the most significant investments. I care about my clients and work very hard to share my knowledge and protect you along the way. I place the appropriate verbiage in the listing and listing agreement depending…
More About JoAnn
Courtesy of Keller Williams Realty Bakersfield. Disclaimer: All data relating to real estate for sale on this page comes from the Broker Reciprocity (BR) of the California Regional Multiple Listing Service. Detailed information about real estate listings held by brokerage firms other than Outland and Associates / JoAnn Outland include the name of the listing broker. Neither the listing company nor Outland and Associates / JoAnn Outland shall be responsible for any typographical errors, misinformation, misprints and shall be held totally harmless. The Broker providing this data believes it to be correct, but advises interested parties to confirm any item before relying on it in a purchase decision. Copyright 2026. California Regional Multiple Listing Service. All rights reserved. 2417 Chester LN
Bakersfield, CA

































