This is an Avila Ranch Work-Force Income Home Listing homesite 297 and potential Buyers must qualify for this program. Avila Ranch highlights the outdoor experience right out of your new front door. There are nine different parks, from small ‘pocket’ parks to the impressive SportsPlex. Park amenities include, play structures, exercise equipment, and fields and courts for various sports. Estimated May of 2025 move in date. Home is under construction photos are from the same plan with finishes. Income requirements at the Work-Force Income level available at the city of SLO website. We appreciate your patience as we expect a high volume of applications.
Current real estate data for Single Family in San Luis Obispo as of Nov 29, 2025
88
Single Family Listed
67
Avg DOM
629
Avg $ / SqFt
$1,172,720
Avg List Price
Property Details
Price:
$738,031
MLS #:
SC25151016
Status:
Pending
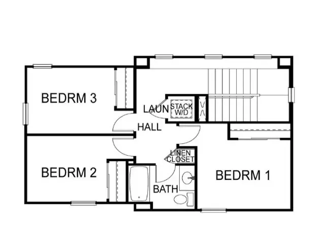
Beds:
3
Baths:
2
Type:
Single Family
Subtype:
Single Family Residence
Subdivision:
San Luis Obispo380
Neighborhood:
slo
Listed Date:
Sep 25, 2025
Finished Sq Ft:
1,169
Lot Size:
3,725 sqft / 0.09 acres (approx)
Year Built:
2025
Schools
School District:
San Luis Coastal Unified
Interior
Appliances
ESA, ER, EWH
Bathrooms
1 Full Bathroom, 1 Half Bathroom
Cooling
DL, ES
Heating
HP, COM, ES
Laundry Features
GE, IN
Exterior
Architectural Style
SPN
Community Features
PARK
Parking Spots
2
Roof
CON
Financial
HOA Fee
$45
HOA Frequency
MO
Map
Contact Us
Mortgage Calculator
Community
- Address240 Memphis Belle WY Lot 297 San Luis Obispo CA
- SubdivisionSan Luis Obispo(380)
- CitySan Luis Obispo
- CountySan Luis Obispo
- Zip Code93401
Subdivisions in San Luis Obispo
Property Summary
- Located in the San Luis Obispo(380) subdivision, 240 Memphis Belle WY Lot 297 San Luis Obispo CA is a Single Family for sale in San Luis Obispo, CA, 93401. It is listed for $738,031 and features 3 beds, 2 baths, and has approximately 1,169 square feet of living space, and was originally constructed in 2025. The current price per square foot is $631. The average price per square foot for Single Family listings in San Luis Obispo is $629. The average listing price for Single Family in San Luis Obispo is $1,172,720. To schedule a showing of MLS#sc25151016 at 240 Memphis Belle WY Lot 297 in San Luis Obispo, CA, contact your Outland and Associates / JoAnn Outland agent at 8054417754.
Similar Listings Nearby
Full-time Real Estate Broker, sold 1400+ Properties in SLO and SBC County. 40+ years of local real estate knowledge and experience. I understand each sale is about you and your goals. I know as we get older, we don’t have time to make up for any mistakes especially when it comes to one the most significant investments. I care about my clients and work very hard to share my knowledge and protect you along the way. I place the appropriate verbiage in the listing and listing agreement depending…
More About JoAnn
Courtesy of Trumark Construction Services, Inc. Disclaimer: All data relating to real estate for sale on this page comes from the Broker Reciprocity (BR) of the California Regional Multiple Listing Service. Detailed information about real estate listings held by brokerage firms other than Outland and Associates / JoAnn Outland include the name of the listing broker. Neither the listing company nor Outland and Associates / JoAnn Outland shall be responsible for any typographical errors, misinformation, misprints and shall be held totally harmless. The Broker providing this data believes it to be correct, but advises interested parties to confirm any item before relying on it in a purchase decision. Copyright 2025. California Regional Multiple Listing Service. All rights reserved. 240 Memphis Belle WY Lot 297
San Luis Obispo, CA





