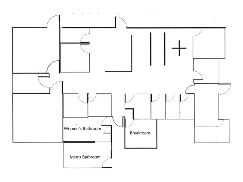
This single level office suite is comprised of nine private offices, two large meeting rooms, open work areas, and a breakroom.
Current real estate data for Single Family in San Luis Obispo as of Jan 14, 2026
89
Single Family Listed
49
Avg DOM
581
Avg $ / SqFt
$854,554
Avg List Price
Property Details
Price:
$0
MLS #:
SC25255345
Status:
Active
Beds:
0
Baths:
0
Type:
Single Family
Subtype:
Office
Neighborhood:
slosanluisobispo
Listed Date:
Dec 17, 2025
Total Sq Ft:
6,500
Lot Size:
32,670 sqft / 0.75 acres (approx)
Year Built:
1985
Schools
Interior
Exterior
Financial
Map
Contact Us
Mortgage Calculator
Community
- Address277 South #R San Luis Obispo CA
- CitySan Luis Obispo
- CountySan Luis Obispo
- Zip Code93401
Subdivisions in San Luis Obispo
Property Summary
- 277 South #R San Luis Obispo CA is a Single Family for sale in San Luis Obispo, CA, 93401. It is listed for $0 and features 0 beds, 0 baths, and has approximately 0 square feet of living space, and was originally constructed in 1985. The average price per square foot for Single Family listings in San Luis Obispo is $581. The average listing price for Single Family in San Luis Obispo is $854,554. To schedule a showing of MLS#sc25255345 at 277 South #R in San Luis Obispo, CA, contact your Outland and Associates / JoAnn Outland agent at 8054417754.
Similar Listings Nearby
Get Out There, A Simply Outgoing Approach to Life. James Outland Jr. is one of those rare people who simply has an outgoing approach to life. No matter the activity… from dune buggy riding to skydiving to motorcycling to riding the local Pismo Beach waves… James Outland Jr. approaches life with a “just get out there and do it” kind of attitude. A zest for Life. James’ zest for life is obviously apparent in his many exciting hobbies. In his spare time, he loves riding dune buggies or hi…
More About James
Courtesy of Anderson & Senn Commercial Real Estate. Disclaimer: All data relating to real estate for sale on this page comes from the Broker Reciprocity (BR) of the California Regional Multiple Listing Service. Detailed information about real estate listings held by brokerage firms other than Outland and Associates / JoAnn Outland include the name of the listing broker. Neither the listing company nor Outland and Associates / JoAnn Outland shall be responsible for any typographical errors, misinformation, misprints and shall be held totally harmless. The Broker providing this data believes it to be correct, but advises interested parties to confirm any item before relying on it in a purchase decision. Copyright 2026. California Regional Multiple Listing Service. All rights reserved. 277 South #R
San Luis Obispo, CA


























