Pismo Beach’s premier Class A office park. The complex offers spectacular Hwy 101 visibility and a mix of professional tenants. $1.85 NNN PSF lease rate.
Current real estate data for Single Family in Pismo Beach as of Jan 14, 2026
21
Single Family Listed
54
Avg DOM
913
Avg $ / SqFt
$2,070,188
Avg List Price
Property Details
Price:
$0
MLS #:
PI25227860
Status:
Active
Beds:
0
Baths:
0
Type:
Single Family
Subtype:
Office
Neighborhood:
psmopismobeach
Listed Date:
Sep 29, 2025
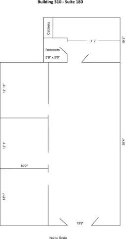
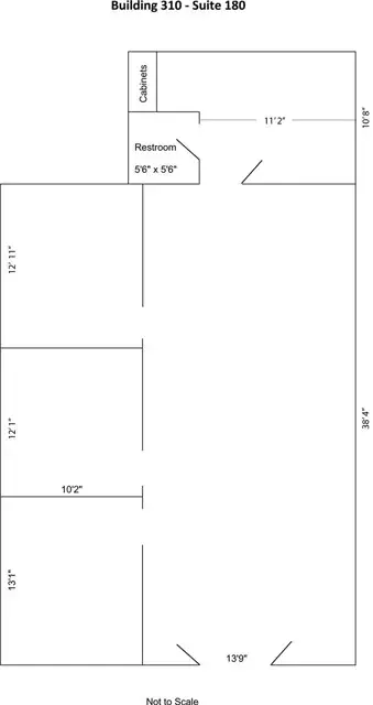
Total Sq Ft:
1,250
Lot Size:
299,693 sqft / 6.88 acres (approx)
Year Built:
2005
Schools
Interior
Heating
FA
Exterior
Roof
CON
Financial
Map
Contact Us
Mortgage Calculator
Community
- Address310 James WY #180 Pismo Beach CA
- CityPismo Beach
- CountySan Luis Obispo
- Zip Code93449
Subdivisions in Pismo Beach
Property Summary
- 310 James WY #180 Pismo Beach CA is a Single Family for sale in Pismo Beach, CA, 93449. It is listed for $0 and features 0 beds, 0 baths, and has approximately 0 square feet of living space, and was originally constructed in 2005. The average price per square foot for Single Family listings in Pismo Beach is $913. The average listing price for Single Family in Pismo Beach is $2,070,188. To schedule a showing of MLS#pi25227860 at 310 James WY #180 in Pismo Beach, CA, contact your Outland and Associates / JoAnn Outland agent at 8054417754.
Similar Listings Nearby
Full-time Real Estate Broker, sold 1400+ Properties in SLO and SBC County. 40+ years of local real estate knowledge and experience. I understand each sale is about you and your goals. I know as we get older, we don’t have time to make up for any mistakes especially when it comes to one the most significant investments. I care about my clients and work very hard to share my knowledge and protect you along the way. I place the appropriate verbiage in the listing and listing agreement depending…
More About JoAnn
Courtesy of Hart Commercial Real Estate. Disclaimer: All data relating to real estate for sale on this page comes from the Broker Reciprocity (BR) of the California Regional Multiple Listing Service. Detailed information about real estate listings held by brokerage firms other than Outland and Associates / JoAnn Outland include the name of the listing broker. Neither the listing company nor Outland and Associates / JoAnn Outland shall be responsible for any typographical errors, misinformation, misprints and shall be held totally harmless. The Broker providing this data believes it to be correct, but advises interested parties to confirm any item before relying on it in a purchase decision. Copyright 2026. California Regional Multiple Listing Service. All rights reserved. 310 James WY #180
Pismo Beach, CA





