1417 San Luis Avenue
Los Osos, CA, 93402
$1,050,000
1978 California Ranch-Style Home on Over Half an Acre, 1417 San Luis Avenue, Los Osos, CA 93402
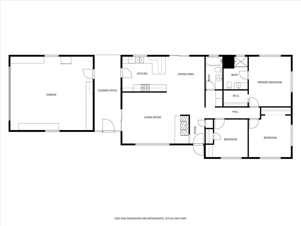
Designed for comfortable, informal living, this single-story ranch-style home sits on a half-acre-plus lot and features vaulted wood ceilings in the living and dining rooms. The open flow between the living room, dining area, and kitchen creates a bright, spacious feel, anchored by a wood-burning fireplace and large picture windows capturing views of Hollister Peak.
The dining room’s sliding glass door opens to a generous concrete patio with a built-in wood-burning barbecue pit—ideal for entertaining and gatherings. Multiple access points to patios, the breezeway, and backyard enhance the home’s easy indoor-outdoor lifestyle.
The attached two-car garage connects through a covered breezeway, offering convenient, weather-protected access on rainy days. Inside, a wide hallway leads to a guest bathroom and two guest bedrooms, with the primary bedroom located across the hall, featuring a walk-in closet and a private bathroom.
With ample space for an ADU, workshop, or FFA/4-H projects, this property offers flexibility and room to grow. Call your Realtor today to schedule a private showing.
Designed for comfortable, informal living, this single-story ranch-style home sits on a half-acre-plus lot and features vaulted wood ceilings in the living and dining rooms. The open flow between the living room, dining area, and kitchen creates a bright, spacious feel, anchored by a wood-burning fireplace and large picture windows capturing views of Hollister Peak.
The dining room’s sliding glass door opens to a generous concrete patio with a built-in wood-burning barbecue pit—ideal for entertaining and gatherings. Multiple access points to patios, the breezeway, and backyard enhance the home’s easy indoor-outdoor lifestyle.
The attached two-car garage connects through a covered breezeway, offering convenient, weather-protected access on rainy days. Inside, a wide hallway leads to a guest bathroom and two guest bedrooms, with the primary bedroom located across the hall, featuring a walk-in closet and a private bathroom.
With ample space for an ADU, workshop, or FFA/4-H projects, this property offers flexibility and room to grow. Call your Realtor today to schedule a private showing.
Current real estate data for Single Family in Los Osos as of Jan 13, 2026
20
Single Family Listed
81
Avg DOM
481
Avg $ / SqFt
$1,106,810
Avg List Price
Property Details
Price:
$1,050,000
MLS #:
SC25278731
Status:
Active
Beds:
3
Baths:
2
Type:
Single Family
Subtype:
Single Family Residence
Neighborhood:
ososlososos
Listed Date:
Dec 20, 2025
Finished Sq Ft:
1,404
Lot Size:
25,265 sqft / 0.58 acres (approx)
Year Built:
1978
Schools
School District:
San Luis Coastal Unified
Elementary School:
Baywood
Middle School:
Los Osos
High School:
Morro Bay
Interior
Appliances
DW, GD, GR, VEF, WHU
Bathrooms
2 Full Bathrooms
Cooling
NO
Flooring
LAM
Heating
GAS, CF, FIR
Laundry Features
GE, IG
Exterior
Architectural Style
CNT
Community Features
RS, SUB, BLM, FHL, PSV, GOLF, PARK, HIKI, BIKI
Construction Materials
DWAL, HAR
Exterior Features
BQ
Other Structures
SH
Parking Spots
2
Roof
CMP
Financial
Map
Contact Us
Mortgage Calculator
Community
- Address1417 San Luis Avenue Los Osos CA
- SubdivisionOther (OTHR)
- CityLos Osos
- CountySan Luis Obispo
- Zip Code93402
Subdivisions in Los Osos
Property Summary
- Located in the Other (OTHR) subdivision, 1417 San Luis Avenue Los Osos CA is a Single Family for sale in Los Osos, CA, 93402. It is listed for $1,050,000 and features 3 beds, 2 baths, and has approximately 1,404 square feet of living space, and was originally constructed in 1978. The current price per square foot is $748. The average price per square foot for Single Family listings in Los Osos is $481. The average listing price for Single Family in Los Osos is $1,106,810. To schedule a showing of MLS#sc25278731 at 1417 San Luis Avenue in Los Osos, CA, contact your Outland and Associates / JoAnn Outland agent at 8054417754.
Similar Listings Nearby
Full-time Real Estate Broker, sold 1400+ Properties in SLO and SBC County. 40+ years of local real estate knowledge and experience. I understand each sale is about you and your goals. I know as we get older, we don’t have time to make up for any mistakes especially when it comes to one the most significant investments. I care about my clients and work very hard to share my knowledge and protect you along the way. I place the appropriate verbiage in the listing and listing agreement depending…
More About JoAnn
Courtesy of Century 21 Masters. Disclaimer: All data relating to real estate for sale on this page comes from the Broker Reciprocity (BR) of the California Regional Multiple Listing Service. Detailed information about real estate listings held by brokerage firms other than Outland and Associates / JoAnn Outland include the name of the listing broker. Neither the listing company nor Outland and Associates / JoAnn Outland shall be responsible for any typographical errors, misinformation, misprints and shall be held totally harmless. The Broker providing this data believes it to be correct, but advises interested parties to confirm any item before relying on it in a purchase decision. Copyright 2026. California Regional Multiple Listing Service. All rights reserved. 1417 San Luis Avenue
Los Osos, CA
































