838 20th
Delano, CA, 93215
$450,000
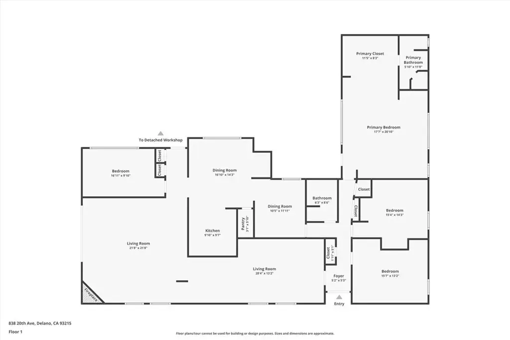
Spacious Corner Lot with Endless Potential! Welcome to this amazing single family residence offering over 2,900 sq. ft. of living space on a large .35 acre lot. Featuring 3 bedrooms (with the potential to easily convert to a fourth), this home is ideal for families or those seeking extra space to grow. The property includes 2 bonus rooms and expansive living areas highlighted by built in cabinetry, providing both charm and functionality. Fresh paint throughout gives the home and bright, move in ready feel. Step outside to enjoy a completely re-plastered, retiled pool with a whole new pump surrounded by new perimeter cement, perfect for relaxing or entertaining. The large covered carport and outbuilding rooms offer flexibility for storage, workshops, or creative spaces. With a bit of upgrading, this home could truly shine! Don’t miss your chance to own this spacious, character-filled property-priced to sell and ready for your vision to bring it to life.
Current real estate data for Single Family in Delano as of Jan 13, 2026
4
Single Family Listed
35
Avg DOM
174
Avg $ / SqFt
$290,000
Avg List Price
Property Details
Price:
$450,000
MLS #:
PI26004813
Status:
Active
Beds:
3
Baths:
2
Type:
Single Family
Subtype:
Single Family Residence
Neighborhood:
deladelano
Listed Date:
Jan 8, 2026
Finished Sq Ft:
2,498
Lot Size:
15,245 sqft / 0.35 acres (approx)
Year Built:
1953
Schools
School District:
Other
Interior
Appliances
DW, GD, MW
Bathrooms
2 Full Bathrooms
Cooling
CA
Heating
CF
Laundry Features
NO
Exterior
Community Features
SDW
Roof
CMP
Financial
Map
Contact Us
Mortgage Calculator
Community
- Address838 20th Delano CA
- CityDelano
- CountyKern
- Zip Code93215
Property Summary
- 838 20th Delano CA is a Single Family for sale in Delano, CA, 93215. It is listed for $450,000 and features 3 beds, 2 baths, and has approximately 2,498 square feet of living space, and was originally constructed in 1953. The current price per square foot is $180. The average price per square foot for Single Family listings in Delano is $174. The average listing price for Single Family in Delano is $290,000. To schedule a showing of MLS#pi26004813 at 838 20th in Delano, CA, contact your Outland and Associates / JoAnn Outland agent at 8054417754.
Similar Listings Nearby
Get Out There, A Simply Outgoing Approach to Life. James Outland Jr. is one of those rare people who simply has an outgoing approach to life. No matter the activity… from dune buggy riding to skydiving to motorcycling to riding the local Pismo Beach waves… James Outland Jr. approaches life with a “just get out there and do it” kind of attitude. A zest for Life. James’ zest for life is obviously apparent in his many exciting hobbies. In his spare time, he loves riding dune buggies or hi…
More About James
Courtesy of Posh Properties of California. Disclaimer: All data relating to real estate for sale on this page comes from the Broker Reciprocity (BR) of the California Regional Multiple Listing Service. Detailed information about real estate listings held by brokerage firms other than Outland and Associates / JoAnn Outland include the name of the listing broker. Neither the listing company nor Outland and Associates / JoAnn Outland shall be responsible for any typographical errors, misinformation, misprints and shall be held totally harmless. The Broker providing this data believes it to be correct, but advises interested parties to confirm any item before relying on it in a purchase decision. Copyright 2026. California Regional Multiple Listing Service. All rights reserved. 838 20th
Delano, CA




































































