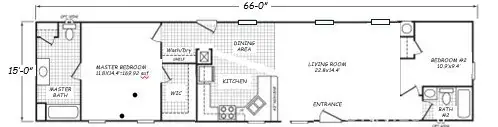
Welcome to California’s best kept secret for 55+ living on the Central Coast at Whale Rock Terrace! Situated on Coast Hwy 1 between Morro Bay and Cambria lies the darling little town of Cayucos, CA known as the “last of the California beach towns” with an average year round climate in the 60’s and 70’s. Whale Rock Terrace is an private mobile home park, owned by the residents, where you own your lot as a share of park – NO LEASE LAND. Property value due to land and location will continue to increase in value! The park has a nominal occupancy fee (similar to an HOA fee) of $200 that covers sewer, trash, streetlights, the clubhouse, community garden, and common areas. With beach access a block away, easily escape the inland area heat! This Fleetwood manufactured home was built and installed in 2021, with a split floor plan, lots of light and open area. Interior features include 2 bedrooms and 2 full baths, gas range, and stainless steel kitchen sink. Master has a good size walk-in closet, ensuite full bath, with linen closet. Guest room has queensize Murphy bed that can easily be converted to office space, den or work room. Exterior features include parking space for 2-3 cars and a golfcart, built-in storage under stair walkway, sunny side deck with a peek-a-boo ocean view, gardening space on back side, and low-maintenance artificial grass. Downtown Cayucos is a short distance away with restaurants, shopping, beach, and dog park around the corner. A short drive away from Cambria, Morro Bay, Mid-State Fair, Paso Robles and San Luis County Wineries! Ownership contigent on park approval. Seller very motivated; reasonable offers considered! Come see this property fast as it’s one of the lowest cost entry options to beachside living!
Current real estate data for Single Family in Cayucos as of Nov 28, 2025
10
Single Family Listed
78
Avg DOM
715
Avg $ / SqFt
$1,786,790
Avg List Price
Property Details
Price:
$710,000
MLS #:
TR25168698
Status:
Active
Beds:
2
Baths:
2
Type:
Single Family
Neighborhood:
cayu
Listed Date:
Jul 28, 2025
Finished Sq Ft:
990
Year Built:
2021
Schools
School District:
See Remarks
Interior
Appliances
IM, RF, WP, GO, GS, DO, GWH, SCO, WS
Bathrooms
2 Full Bathrooms
Cooling
NO
Flooring
VINY
Heating
CF
Laundry Features
GE
Exterior
Community
55+
Community Features
SL, HNT, MTN, PSV, PARK, FISH, WATE, HIKI, BIKI, DGP
Parking Spots
3
Financial
Map
Contact Us
Mortgage Calculator
Community
- Address1625 Cass AV #22 Cayucos CA
- CityCayucos
- CountySan Luis Obispo
- Zip Code93430
Subdivisions in Cayucos
Property Summary
- 1625 Cass AV #22 Cayucos CA is a Single Family for sale in Cayucos, CA, 93430. It is listed for $710,000 and features 2 beds, 2 baths, and has approximately 990 square feet of living space, and was originally constructed in 2021. The current price per square foot is $717. The average price per square foot for Single Family listings in Cayucos is $715. The average listing price for Single Family in Cayucos is $1,786,790. To schedule a showing of MLS#tr25168698 at 1625 Cass AV #22 in Cayucos, CA, contact your Outland and Associates / JoAnn Outland agent at 8054417754.
Similar Listings Nearby
Full-time Real Estate Broker, sold 1400+ Properties in SLO and SBC County. 40+ years of local real estate knowledge and experience. I understand each sale is about you and your goals. I know as we get older, we don’t have time to make up for any mistakes especially when it comes to one the most significant investments. I care about my clients and work very hard to share my knowledge and protect you along the way. I place the appropriate verbiage in the listing and listing agreement depending…
More About JoAnn
Courtesy of Homecoin.com. Disclaimer: All data relating to real estate for sale on this page comes from the Broker Reciprocity (BR) of the California Regional Multiple Listing Service. Detailed information about real estate listings held by brokerage firms other than Outland and Associates / JoAnn Outland include the name of the listing broker. Neither the listing company nor Outland and Associates / JoAnn Outland shall be responsible for any typographical errors, misinformation, misprints and shall be held totally harmless. The Broker providing this data believes it to be correct, but advises interested parties to confirm any item before relying on it in a purchase decision. Copyright 2025. California Regional Multiple Listing Service. All rights reserved. 1625 Cass AV #22
Cayucos, CA








































