318 Leeta
Bakersfield, CA, 93307
$349,900
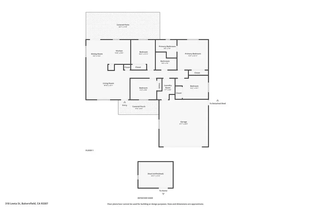
Northeast 4-bedroom, 2-bath home with RV parking and a dedicated workshop space. Inside, the formal living room opens seamlessly to the dining area, creating an easy flow for everyday living and entertaining, while a large window fills the space with natural light. A charming built-in nook adds both character and function to the living room, featuring a countertop and display space—ideal for a beverage station, media storage, or styled décor moment. The hall bath offers dual sinks, and the home includes a dedicated laundry room with storage cabinets for added convenience. The workshop provides flexibility with built-in work surfaces, organized pegboard walls, shelving, and lighting—perfect for hobbies, small projects, or additional storage. With RV parking, dedicated workshop and storage this home delivers functionality and versatility.
Current real estate data for Single Family in Bakersfield as of Jan 13, 2026
219
Single Family Listed
50
Avg DOM
228
Avg $ / SqFt
$425,208
Avg List Price
Property Details
Price:
$349,900
MLS #:
SR25279989
Status:
Active
Beds:
4
Baths:
2
Type:
Single Family
Subtype:
Single Family Residence
Neighborhood:
bksfbakersfield
Listed Date:
Jan 5, 2026
Finished Sq Ft:
1,391
Lot Size:
6,970 sqft / 0.16 acres (approx)
Year Built:
1997
Schools
School District:
Other
Interior
Appliances
CO
Bathrooms
2 Full Bathrooms
Cooling
CA
Flooring
CARP
Heating
RA
Laundry Features
IR, IN
Exterior
Community Features
SUB
Parking Spots
2
Roof
CMP
Financial
Map
Contact Us
Mortgage Calculator
Community
- Address318 Leeta Bakersfield CA
- CityBakersfield
- CountyKern
- Zip Code93307
Property Summary
- 318 Leeta Bakersfield CA is a Single Family for sale in Bakersfield, CA, 93307. It is listed for $349,900 and features 4 beds, 2 baths, and has approximately 1,391 square feet of living space, and was originally constructed in 1997. The current price per square foot is $252. The average price per square foot for Single Family listings in Bakersfield is $228. The average listing price for Single Family in Bakersfield is $425,208. To schedule a showing of MLS#sr25279989 at 318 Leeta in Bakersfield, CA, contact your Outland and Associates / JoAnn Outland agent at 8054417754.
Similar Listings Nearby
Full-time Real Estate Broker, sold 1400+ Properties in SLO and SBC County. 40+ years of local real estate knowledge and experience. I understand each sale is about you and your goals. I know as we get older, we don’t have time to make up for any mistakes especially when it comes to one the most significant investments. I care about my clients and work very hard to share my knowledge and protect you along the way. I place the appropriate verbiage in the listing and listing agreement depending…
More About JoAnn
Courtesy of Coldwell Banker Preferred Realtors. Disclaimer: All data relating to real estate for sale on this page comes from the Broker Reciprocity (BR) of the California Regional Multiple Listing Service. Detailed information about real estate listings held by brokerage firms other than Outland and Associates / JoAnn Outland include the name of the listing broker. Neither the listing company nor Outland and Associates / JoAnn Outland shall be responsible for any typographical errors, misinformation, misprints and shall be held totally harmless. The Broker providing this data believes it to be correct, but advises interested parties to confirm any item before relying on it in a purchase decision. Copyright 2026. California Regional Multiple Listing Service. All rights reserved. 318 Leeta
Bakersfield, CA







































