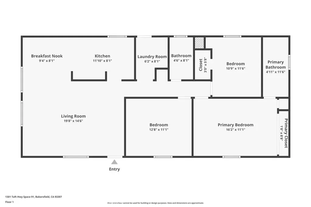
Welcome to this inviting 3 bedroom, 2 bath manufactured home located in Southland Mobile Home Park. The kitchen offers granite counters, ample cabinets, and plenty of storage space, combining both function and style. Tile flooring throughout makes for easy upkeep and adds to the home’s convenience. The open layout flows into the living area, creating a comfortable space for everyday living. The primary suite includes a private bath, while two additional bedrooms provide flexibility for family, guests, or a home office. Outside, the artificial turf in the front yard enhances the curb appeal while providing low-maintenance beauty year-round. You’ll also appreciate the convenience of a storage shed and additional low-maintenance yard space. As a resident of Southland, you’ll have access to the community pool—perfect for cooling off on warm days and enjoying time close to home. This home is turn-key and ready for its new owner!
Current real estate data for Single Family in Bakersfield as of Jan 14, 2026
210
Single Family Listed
51
Avg DOM
221
Avg $ / SqFt
$438,300
Avg List Price
Property Details
Price:
$89,999
MLS #:
SR25243271
Status:
Pending
Beds:
3
Baths:
2
Type:
Single Family
Neighborhood:
bksfbakersfield
Listed Date:
Dec 4, 2025
Finished Sq Ft:
1,243
Year Built:
1987
Schools
School District:
Other
Interior
Appliances
GR
Bathrooms
2 Full Bathrooms
Cooling
CA
Heating
BB
Laundry Features
IN
Exterior
Community Features
SUB
Financial
Lease Land Amount
$799
Lease Land Frequency
MO
Map
Contact Us
Mortgage Calculator
Community
- Address1301 Taft #91 Bakersfield CA
- CityBakersfield
- CountyKern
- Zip Code93307
Property Summary
- 1301 Taft #91 Bakersfield CA is a Single Family for sale in Bakersfield, CA, 93307. It is listed for $89,999 and features 3 beds, 2 baths, and has approximately 1,243 square feet of living space, and was originally constructed in 1987. The current price per square foot is $72. The average price per square foot for Single Family listings in Bakersfield is $221. The average listing price for Single Family in Bakersfield is $438,300. To schedule a showing of MLS#sr25243271 at 1301 Taft #91 in Bakersfield, CA, contact your Outland and Associates / JoAnn Outland agent at 8054417754.
Similar Listings Nearby
Get Out There, A Simply Outgoing Approach to Life. James Outland Jr. is one of those rare people who simply has an outgoing approach to life. No matter the activity… from dune buggy riding to skydiving to motorcycling to riding the local Pismo Beach waves… James Outland Jr. approaches life with a “just get out there and do it” kind of attitude. A zest for Life. James’ zest for life is obviously apparent in his many exciting hobbies. In his spare time, he loves riding dune buggies or hi…
More About James
Courtesy of Coldwell Banker Preferred Realtors. Disclaimer: All data relating to real estate for sale on this page comes from the Broker Reciprocity (BR) of the California Regional Multiple Listing Service. Detailed information about real estate listings held by brokerage firms other than Outland and Associates / JoAnn Outland include the name of the listing broker. Neither the listing company nor Outland and Associates / JoAnn Outland shall be responsible for any typographical errors, misinformation, misprints and shall be held totally harmless. The Broker providing this data believes it to be correct, but advises interested parties to confirm any item before relying on it in a purchase decision. Copyright 2026. California Regional Multiple Listing Service. All rights reserved. 1301 Taft #91
Bakersfield, CA































