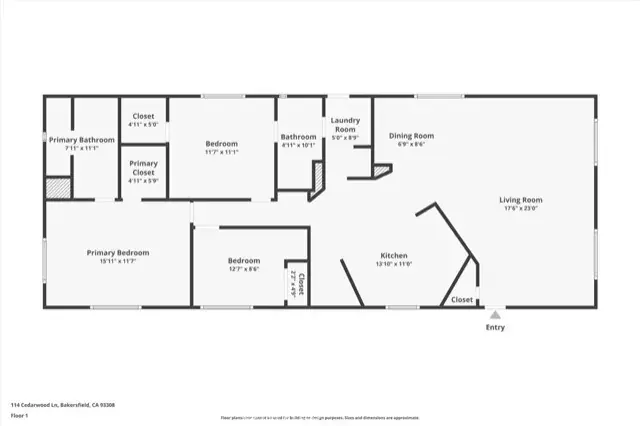
Tucked away on a desirable corner lot in the peaceful Riverdale Village community, this beautifully refreshed 3-bedroom, 2-bathroom home with central AC and heat, offers 1,440 square feet of inviting living space. Thoughtfully updated throughout, the home features fresh interior and exterior paint, abundant natural light, and a seamless blend of comfort and functionality. Step inside to find new wood-look flooring and plush carpet throughout, creating a warm and welcoming atmosphere. The kitchen has been tastefully refreshed with updated appliances and cabinetry, offering a clean and practical space for daily living. The spacious primary suite serves as a relaxing haven with its walk-in shower and separate soaking tub. Riverdale Village residents enjoy access to a wide array of community amenities, including a sparkling swimming pool, fitness center, manicured green spaces, pet-friendly walking areas, and a recreation room ideal for gatherings and events. Schedule a tour today!
Current real estate data for Single Family in Bakersfield as of Nov 28, 2025
214
Single Family Listed
52
Avg DOM
226
Avg $ / SqFt
$433,191
Avg List Price
Property Details
Price:
$114,900
MLS #:
PI25176846
Status:
Active
Beds:
3
Baths:
2
Type:
Single Family
Neighborhood:
bksf
Listed Date:
Sep 25, 2025
Finished Sq Ft:
1,440
Lot Size:
152,460,000 sqft / 3,500.00 acres (approx)
Year Built:
1977
Schools
School District:
Bakersfield City
Interior
Bathrooms
2 Full Bathrooms
Cooling
CA
Heating
CF
Laundry Features
IR
Exterior
Community Features
CRB
Parking Spots
2
Financial
Lease Land Amount
$795
Lease Land Frequency
MO
Map
Contact Us
Mortgage Calculator
Community
- Address114 Cedarwood LN Bakersfield CA
- CityBakersfield
- CountyKern
- Zip Code93308
Property Summary
- 114 Cedarwood LN Bakersfield CA is a Single Family for sale in Bakersfield, CA, 93308. It is listed for $114,900 and features 3 beds, 2 baths, and has approximately 1,440 square feet of living space, and was originally constructed in 1977. The current price per square foot is $80. The average price per square foot for Single Family listings in Bakersfield is $226. The average listing price for Single Family in Bakersfield is $433,191. To schedule a showing of MLS#pi25176846 at 114 Cedarwood LN in Bakersfield, CA, contact your Outland and Associates / JoAnn Outland agent at 8054417754.
Similar Listings Nearby
Full-time Real Estate Broker, sold 1400+ Properties in SLO and SBC County. 40+ years of local real estate knowledge and experience. I understand each sale is about you and your goals. I know as we get older, we don’t have time to make up for any mistakes especially when it comes to one the most significant investments. I care about my clients and work very hard to share my knowledge and protect you along the way. I place the appropriate verbiage in the listing and listing agreement depending…
More About JoAnn
Courtesy of Keller Williams Realty Bakersfield. Disclaimer: All data relating to real estate for sale on this page comes from the Broker Reciprocity (BR) of the California Regional Multiple Listing Service. Detailed information about real estate listings held by brokerage firms other than Outland and Associates / JoAnn Outland include the name of the listing broker. Neither the listing company nor Outland and Associates / JoAnn Outland shall be responsible for any typographical errors, misinformation, misprints and shall be held totally harmless. The Broker providing this data believes it to be correct, but advises interested parties to confirm any item before relying on it in a purchase decision. Copyright 2025. California Regional Multiple Listing Service. All rights reserved. 114 Cedarwood LN
Bakersfield, CA































