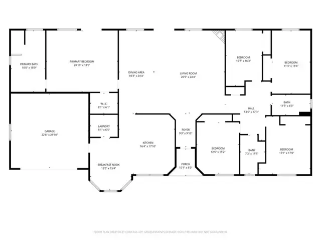
Welcome to your lifetime property, a spacious 3,200± sq. ft. single-level home on over 5 acres of beautifully maintained land in desirable Atascadero. Designed for comfortable living, this 5-bedroom, 3-bath residence combines function, flexibility, and charm.
The thoughtful split-wing floor plan offers privacy and space for everyone. One of the five bedrooms has been converted into a fitness room, while the expansive primary suite features a walk-in closet with barn-style doors and a remodeled ensuite bathroom complete with a restored antique clawfoot soaking tub.
The heart of the home is the inviting kitchen with a large center island, abundant oak cabinetry, and a cheerful breakfast nook that overlooks the rose garden. A cozy gas fireplace anchors the living area, and durable laminate flooring flows throughout the home.
Step outside and discover everything you’ve dreamed of- a large concrete patio perfect for entertaining, low-maintenance turf front and side yards, and a gorgeous rose garden that welcomes you home. The property also includes an equipment awning, fenced raised-bed garden with a chicken coop, greenhouse, utility shed, and an orchard boasting 4 apple, 2 cherry, a peach, a nectarine, an apricot, and 2 plum trees.
Car enthusiasts and hobbyists will love the attached 2-car garage and detached 3-car hobby garage or workshop. Both finished with upgraded Swisstrax flooring and 220 electrical in the hobby garage. RV owners will appreciate the dedicated parking area with dump, water and electric hookups.
Recent updates include a resealed driveway, owned solar system, and a 200-amp Generac back-up generator powered by natural gas for peace of mind.
Both the home and detached 3 car hobby garage/workshop are outfitted with Leaf Filters for easy maintenance. Properties like this rarely come to market- offering the ideal blend of space, functionality, and Central Coast lifestyle. Make 9350 Santa Cruz Rd your forever home on the Central Coast.
The thoughtful split-wing floor plan offers privacy and space for everyone. One of the five bedrooms has been converted into a fitness room, while the expansive primary suite features a walk-in closet with barn-style doors and a remodeled ensuite bathroom complete with a restored antique clawfoot soaking tub.
The heart of the home is the inviting kitchen with a large center island, abundant oak cabinetry, and a cheerful breakfast nook that overlooks the rose garden. A cozy gas fireplace anchors the living area, and durable laminate flooring flows throughout the home.
Step outside and discover everything you’ve dreamed of- a large concrete patio perfect for entertaining, low-maintenance turf front and side yards, and a gorgeous rose garden that welcomes you home. The property also includes an equipment awning, fenced raised-bed garden with a chicken coop, greenhouse, utility shed, and an orchard boasting 4 apple, 2 cherry, a peach, a nectarine, an apricot, and 2 plum trees.
Car enthusiasts and hobbyists will love the attached 2-car garage and detached 3-car hobby garage or workshop. Both finished with upgraded Swisstrax flooring and 220 electrical in the hobby garage. RV owners will appreciate the dedicated parking area with dump, water and electric hookups.
Recent updates include a resealed driveway, owned solar system, and a 200-amp Generac back-up generator powered by natural gas for peace of mind.
Both the home and detached 3 car hobby garage/workshop are outfitted with Leaf Filters for easy maintenance. Properties like this rarely come to market- offering the ideal blend of space, functionality, and Central Coast lifestyle. Make 9350 Santa Cruz Rd your forever home on the Central Coast.
Current real estate data for Single Family in Atascadero as of Nov 28, 2025
55
Single Family Listed
44
Avg DOM
422
Avg $ / SqFt
$763,348
Avg List Price
Property Details
Price:
$1,225,000
MLS #:
SC25250440
Status:
Active
Beds:
5
Baths:
3
Type:
Single Family
Subtype:
Single Family Residence
Subdivision:
ATSouthwest50
Neighborhood:
atsc
Listed Date:
Oct 30, 2025
Finished Sq Ft:
3,199
Lot Size:
239,144 sqft / 5.49 acres (approx)
Year Built:
2001
Schools
School District:
Atascadero Unified
Interior
Appliances
DW, GD, ES, DO
Bathrooms
3 Full Bathrooms
Cooling
CA
Flooring
LAM
Heating
FA
Laundry Features
IR
Exterior
Architectural Style
RAN
Community Features
RUR
Construction Materials
STC
Other Structures
GR, SH, SEGAD
Parking Spots
10
Roof
TLE
Security Features
SD, COD
Financial
Map
Contact Us
Mortgage Calculator
Community
- Address9350 Santa Cruz Rd Lot 2 Atascadero CA
- SubdivisionATSouthwest(50)
- CityAtascadero
- CountySan Luis Obispo
- Zip Code93422
Subdivisions in Atascadero
Property Summary
- Located in the ATSouthwest(50) subdivision, 9350 Santa Cruz Rd Lot 2 Atascadero CA is a Single Family for sale in Atascadero, CA, 93422. It is listed for $1,225,000 and features 5 beds, 3 baths, and has approximately 3,199 square feet of living space, and was originally constructed in 2001. The current price per square foot is $383. The average price per square foot for Single Family listings in Atascadero is $422. The average listing price for Single Family in Atascadero is $763,348. To schedule a showing of MLS#sc25250440 at 9350 Santa Cruz Rd Lot 2 in Atascadero, CA, contact your Outland and Associates / JoAnn Outland agent at 8054417754.
Similar Listings Nearby
Get Out There, A Simply Outgoing Approach to Life. James Outland Jr. is one of those rare people who simply has an outgoing approach to life. No matter the activity… from dune buggy riding to skydiving to motorcycling to riding the local Pismo Beach waves… James Outland Jr. approaches life with a “just get out there and do it” kind of attitude. A zest for Life. James’ zest for life is obviously apparent in his many exciting hobbies. In his spare time, he loves riding dune buggies or hi…
More About James
Courtesy of Century 21 Masters. Disclaimer: All data relating to real estate for sale on this page comes from the Broker Reciprocity (BR) of the California Regional Multiple Listing Service. Detailed information about real estate listings held by brokerage firms other than Outland and Associates / JoAnn Outland include the name of the listing broker. Neither the listing company nor Outland and Associates / JoAnn Outland shall be responsible for any typographical errors, misinformation, misprints and shall be held totally harmless. The Broker providing this data believes it to be correct, but advises interested parties to confirm any item before relying on it in a purchase decision. Copyright 2025. California Regional Multiple Listing Service. All rights reserved. 9350 Santa Cruz Rd Lot 2
Atascadero, CA
















































