San Gabriel Lot 1
Atascadero, CA, 93422
$1,390,000
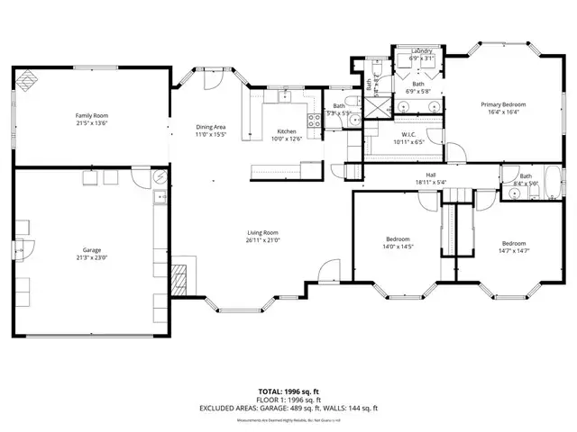
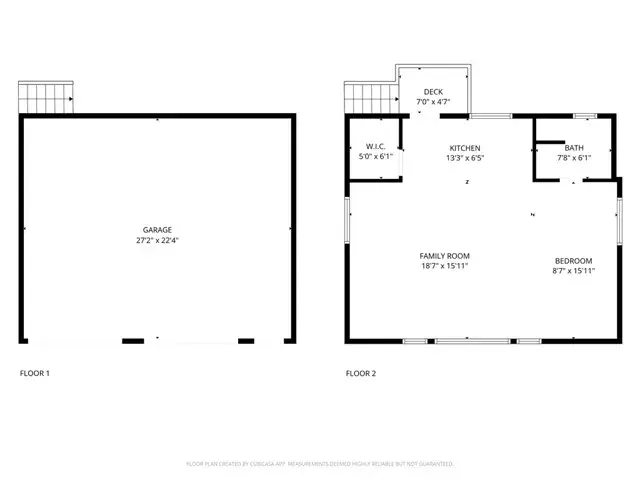
Welcome to this beautifully updated 3 bedroom, 2.5 bathroom home plus studio on ~ 5 gated acres, offering privacy, panoramic views and exceptional functionality. With 2140 sf of stylish living space in the main home and a 672 sf detached studio above the garage, this property is ideal for multi-generational living, guest space or rental income. Step inside to find luxury vinyl plank flooring throughout, leading you into a bright living room with vaulted ceilings, a cozy gas fireplace and large windows that perfectly frame the sweeping views. The custom kitchen is a showstopper with quartz countertops, soft-close cabinetry and pull-out drawers—perfect for both daily life and entertaining. The family room connects to the immaculate attached garage, which includes cabinets, a sink and epoxy floors for a clean, finished feel. On the opposite side of the home, you’ll find two guest bedrooms and the generous primary suite, featuring vaulted ceilings, a walk-in closet and access to the back patio. The ensuite bathroom includes a dual sink vanity and a beautiful walk-in shower. Outside, enjoy peaceful evenings on the covered back porch, or explore the fully fenced property, complete with multiple sheds, animal shelters and a chicken coop—ideal for 4H projects or animal lovers. The detached 2-car garage includes a 672 sf studio apartment above with a spacious kitchenette, bathroom and large windows offering stunning views. Perfect for guests, extended family or potential rental income. Additional features include owned solar, newer roof, windows and interior paint. Privacy and space to roam, this property truly offers an elevated lifestyle with room to grow, create and enjoy country living without compromising modern comfort. Don’t let this one pass you by—schedule your private tour today! Review the Virtual Tour for additional photos and information.
Current real estate data for Single Family in Atascadero as of Nov 28, 2025
55
Single Family Listed
44
Avg DOM
422
Avg $ / SqFt
$763,348
Avg List Price
Property Details
Price:
$1,390,000
MLS #:
NS25225707
Status:
Active
Beds:
4
Baths:
3
Type:
Single Family
Subtype:
Single Family Residence
Subdivision:
ATNorthwest20
Neighborhood:
atsc
Listed Date:
Sep 30, 2025
Finished Sq Ft:
2,812
Lot Size:
213,444 sqft / 4.90 acres (approx)
Year Built:
1997
Schools
School District:
Atascadero Unified
Interior
Appliances
DW, FZ, GD, MW, RF, ER, WHU
Bathrooms
3 Full Bathrooms
Cooling
CA
Heating
FA
Laundry Features
IN
Exterior
Community Features
RUR
Other Structures
SH, GHD, SEGAD
Parking Spots
4
Roof
CMP
Financial
Map
Contact Us
Mortgage Calculator
Community
- AddressSan Gabriel Lot 1 Atascadero CA
- SubdivisionATNorthwest(20)
- CityAtascadero
- CountySan Luis Obispo
- Zip Code93422
Subdivisions in Atascadero
Property Summary
- Located in the ATNorthwest(20) subdivision, San Gabriel Lot 1 Atascadero CA is a Single Family for sale in Atascadero, CA, 93422. It is listed for $1,390,000 and features 4 beds, 3 baths, and has approximately 2,812 square feet of living space, and was originally constructed in 1997. The current price per square foot is $494. The average price per square foot for Single Family listings in Atascadero is $422. The average listing price for Single Family in Atascadero is $763,348. To schedule a showing of MLS#ns25225707 at San Gabriel Lot 1 in Atascadero, CA, contact your Outland and Associates / JoAnn Outland agent at 8054417754.
Similar Listings Nearby
Full-time Real Estate Broker, sold 1400+ Properties in SLO and SBC County. 40+ years of local real estate knowledge and experience. I understand each sale is about you and your goals. I know as we get older, we don’t have time to make up for any mistakes especially when it comes to one the most significant investments. I care about my clients and work very hard to share my knowledge and protect you along the way. I place the appropriate verbiage in the listing and listing agreement depending…
More About JoAnn
Courtesy of Malik Real Estate Group, Inc.. Disclaimer: All data relating to real estate for sale on this page comes from the Broker Reciprocity (BR) of the California Regional Multiple Listing Service. Detailed information about real estate listings held by brokerage firms other than Outland and Associates / JoAnn Outland include the name of the listing broker. Neither the listing company nor Outland and Associates / JoAnn Outland shall be responsible for any typographical errors, misinformation, misprints and shall be held totally harmless. The Broker providing this data believes it to be correct, but advises interested parties to confirm any item before relying on it in a purchase decision. Copyright 2025. California Regional Multiple Listing Service. All rights reserved. San Gabriel Lot 1
Atascadero, CA










































































